Project:

S House

Location:

Corbeanca, Romania

Architectural program:

Residential

Date of completion:

2022

This residential project presents an interior design solution tailored for a family with two children. The ground floor design focuses on creating a harmonious and functional open space that encompasses the living room, dining area, and kitchen, all seamlessly connected to the garden. The design maximizes the airy feel of the 3-meter-high living room, enhanced by a large skylight that floods the space with natural light. The open layout encourages family interaction, supports hobbies—such as playing the piano—and provides a versatile environment for both relaxation and entertainment.

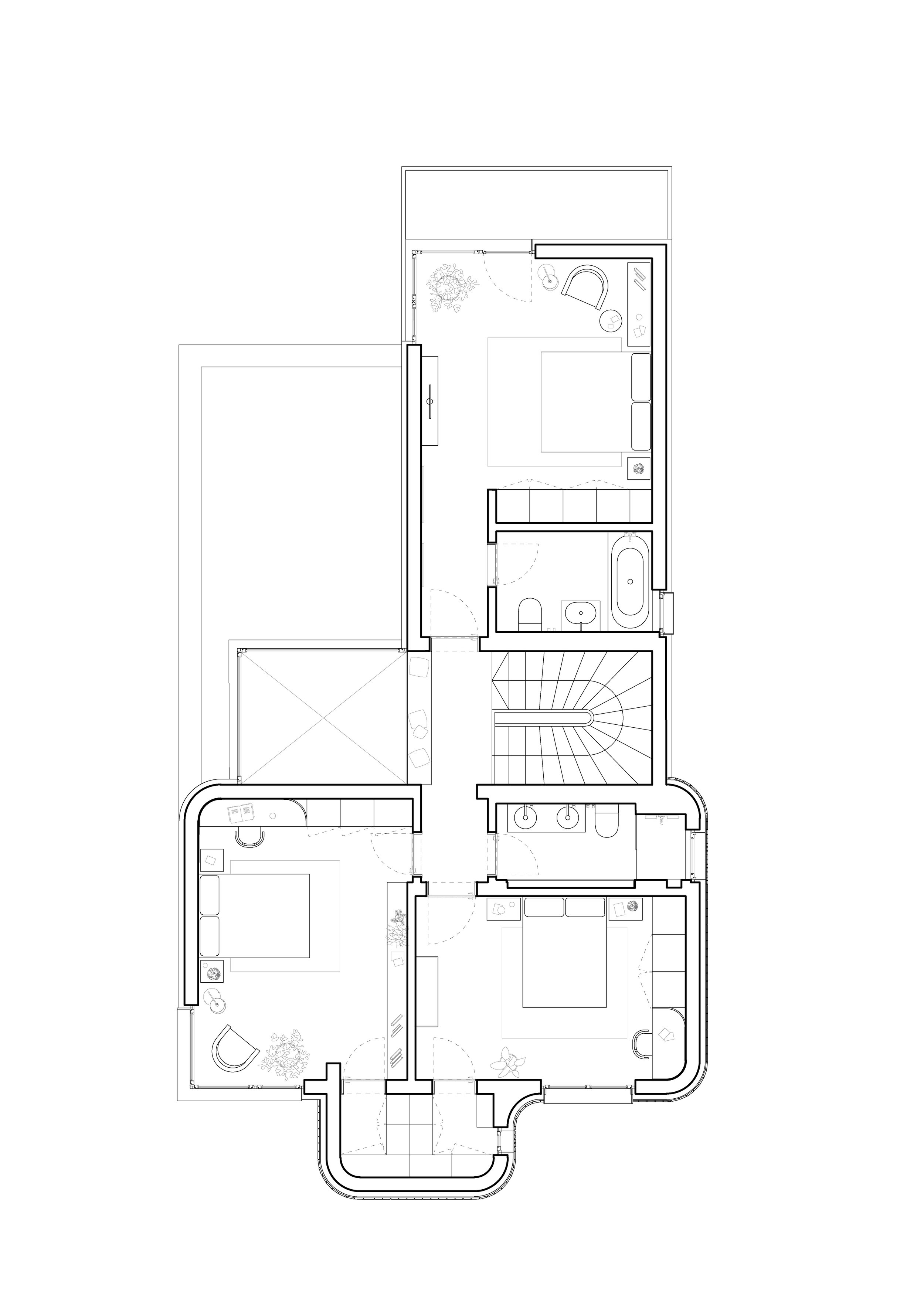
The first floor is dedicated to the bedrooms. The children’s bedrooms are designed to reflect their personality and hobbies, with a cozy reading nook for the daughter and display areas for the son’s LEGO collection. Both feature a neutral palette of wood veneer, white furniture, and subtle pops of color for a timeless look.

The master suite is thoughtfully designed as a private oasis, offering a retreat from daily life. It features a spacious bathroom with elegant finishes, a serene bedroom with calming neutral tones, a cozy reading corner, and a versatile space to relax and enjoy privacy. Whether savoring a glass of wine, reflecting on the day, or simply unwinding, every element of the suite is tailored to provide comfort, intimacy, and tranquility—a true sanctuary within the home.

Residential Interior Design of a Modern House

The concept for this family home draws inspiration from scenography, where recurring elements create a cohesive narrative and visual flow.

The terrazzo totems, scattered throughout the rooms, act as playful sculptures, adding a touch of whimsy and serving multiple functions. These totems, along with the warm wood veneer volumes that form backdrops and storage units, become key players in this design project.

This design balances aesthetics with practicality, creating a welcoming and adaptable space that caters to the needs of a modern family. Natural light is gently diffused throughout the space by the use of natural curtains. Accents of warm, diffused artificial light complement the natural light, creating a cozy and inviting atmosphere.

A series of continuous furniture elements create cohesion throughout the space. A low commode serves as a banquette for the dining area, as well as a base for the fireplace, and a TV stand, maximizing functionality and storage.

A light essence wooden shelf extends across the living room, displaying a curated collection of books, magazines, and exhibition posters, adding a touch of personality and intellectual curiosity.

Low terrazzo pedestals are scattered throughout the rooms, serving as coffee tables, flower pot holders, or stools, adding a playful and stylish touch.

Bespoke volumes crafted from wood veneer create dedicated study and storage areas for the children, blending seamlessly into the design while providing functional spaces.

Vertical wooden slats bring texture and elegance to the master bedroom, complementing pedestals and lush greenery.

An outdoor extension has been built adjacent to the house, serving as a stylish and functional space for the homeowner's hobbies.

The focal point is undoubtedly the motorcycle, dramatically lit to emphasize its beauty and form.

The extension also functions as an organized storage area. Shelving units line the walls, neatly storing gardening tools and other equipment, blending utility with the overall aesthetic.