Project:

Botanic University Campus &

Public Garden

Location:

Barcelona, Spain

Architectural program:

Educational

Date of completion:

2020

Renders by:

Horoma Studio

Don’t worry about sounding professional. Sounds like you. There are over 1.5 billion websites out there, but your story is what’s going to separate this one from the rest. It all begins with an idea.

Maybe you want to launch a business. Maybe you want to turn a hobby into something more. Or maybe you have a creative project to share with the world. Whatever it is, the way you tell your story online can make all the difference.

Don’t worry about sounding professional. Sounds like you. There are over 1.5 billion websites out there, but your story is what’s going to separate this one from the rest. It all begins with an idea. Maybe you want to launch a business. Maybe you want to turn a hobby into something more. Or maybe you have a creative project to share with the world. Whatever it is, the way you tell your story online can make all the difference. Or maybe you have a creative project to share with the world. Whatever it is, the way you tell your story online can make all the difference.

Strategy 01

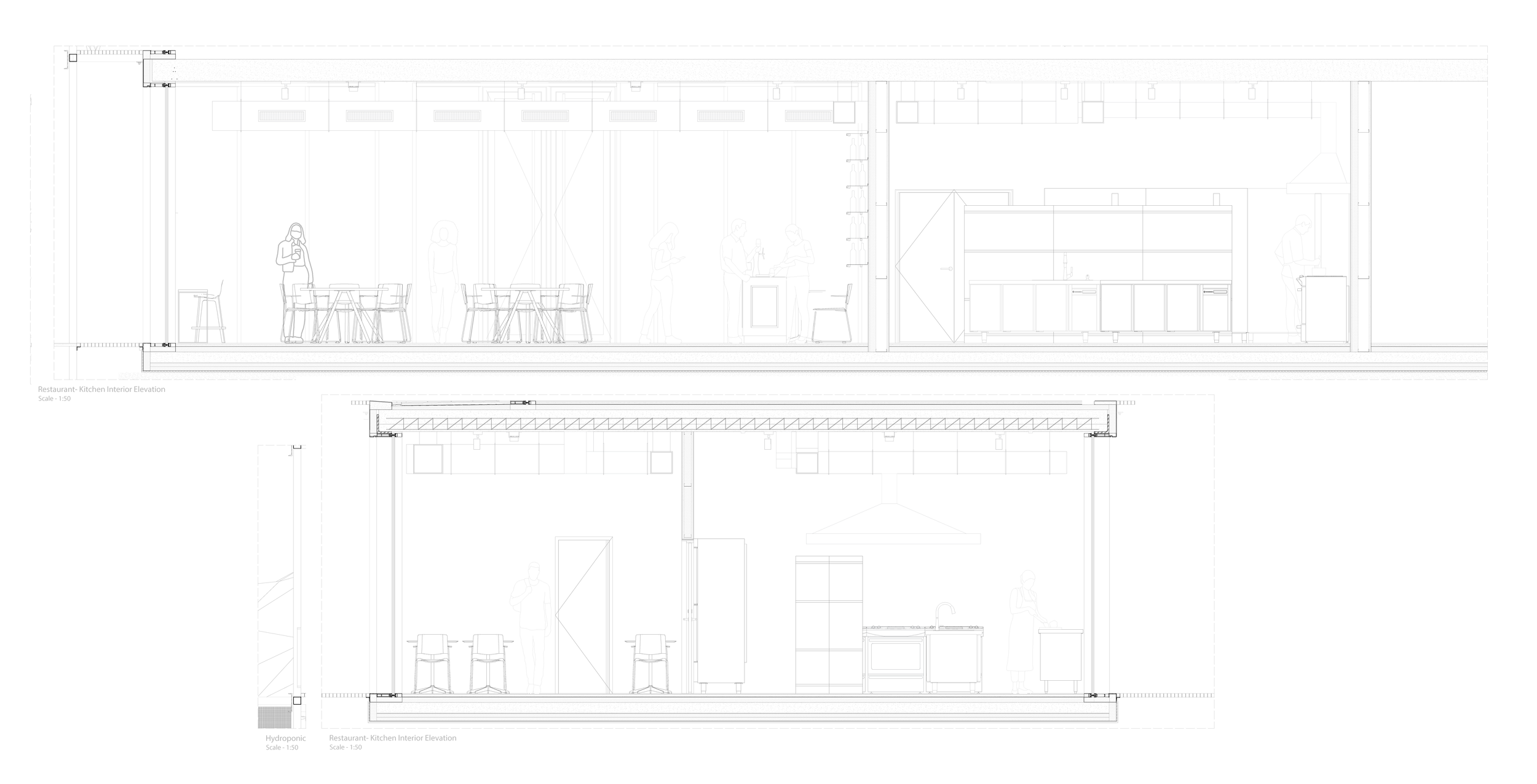
The project begins with the site in its raw form, resembling ancestral fields and offering various possibilities. It emphasizes that construction should create communities while leveraging the soil's fertility to nurture life and support green areas in urban settings. An old chimney tower symbolizes the reconnection to the past as the project aims to build a sustainable future in a contaminated environment.

Botanic University Campus and Public Garden Architecture
Botanic University Campus and Public Garden Architecture

Strategy 02

The chimney serves as a key element, establishing the volume that guides the division of spaces into uniform squares, thereby creating a grid that aligns with the existing parameters.

Strategy 03

The next step consists in an analysis of the directions of the existing streets and buildings. The first lines defining the overall volume of the new building are inspired by the flow of the elements surrounding the plot. By respecting the flow, the future edifice is strongly linked to the existing conditions and dynamics of the area where it is located.

Botanic University Campus and Public Garden Architecture
Botanic University Campus and Public Garden Architecture

Strategy 04

The project prioritizes creating green spaces, recognizing their rising popularity as public areas. It is anticipated that private spaces will become less common, leading to shared experiences and spaces. The next phase involves offsetting raw volumes to form large green areas and public spaces, fostering connections with surrounding buildings and facilitating organic movement of people, which is essential for revitalizing the area.

Botanic University Campus and Public Garden Architecture

Strategy 05

The following step can be seen as the action of extruding the soil, which results in the creation of elevated gardens. The volumes are extruded until they match the height of the tallest building nearby.

Botanic University Campus and Public Garden Architecture

Strategy 06

In order to adapt the building to the orientation of the plot and the language of the surrounding edifice, each volume of the new constructions is lowered corresponding to the same level as the building nearby.

Botanic University Campus and Public Garden Architecture

The future needs green areas to be implemented even in the smallest areas of the cities, and this project can be seen as a way of reconnecting to the past in order to build a healthy future in a more and more contaminated environment.

The building is based on an ancestral idea: any new construction should not only build communities and bring shelter, it must be explored in a way that the fertility of the soil is taken advantage of.

The project serves the purpose of allowing life to be nurtured, new plants to be planted and valued as sources of energy and oxygen.

Moreover, by being a Botanic University Campus and a Public Garden, the research of new ways of approaching agriculture in big cities is encouraged.

By giving access to the public to interact with the building, the community can be involved in the process of creating a healthier future and tough valuable practices related to botanics that can be applied in their every day life.

The first lines defining the overall volume of the new building are inspired by the flow of the elements surrounding the plot. By respecting the flow, the edifice is strongly linked to the existing conditions and dynamics of the area where it is located.

Every opportunity of creating more green spaces is taken into consideration. Not only that, but green areas seen as public spaces are gaining popularity. It is believed that private property and spaces are going to become less and less frequent in the future and sharing experiences and spaces is seen as an interesting possibility to explore.

Following these two concepts it was very important to generate big green areas and public spaces in between. The voids obtained not only create links with the surrounding buildings, but are also generating an organic flow of persons necessary in the process of reviving the area where the plot is located.

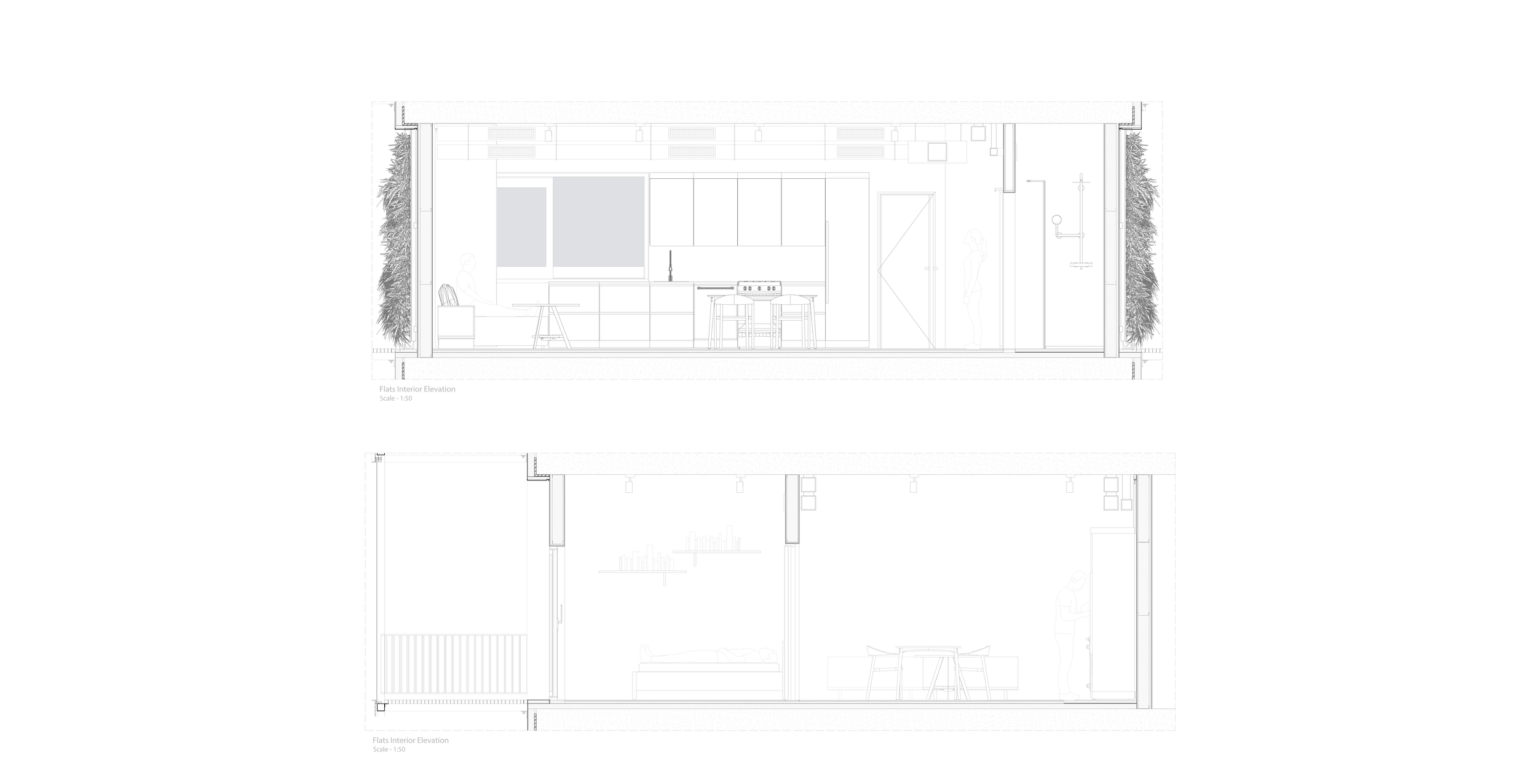
The purpose of having creating different heights is to obtain elevated gardens and to make each volume of the new construction correspond to the same level as the building nearby.

Levels inside the building are created following the same structure and grid which allows the particularities of the environmental conditions to positively affect it.

Each of the four volumes on each level is growing outside in order to create circulation area around it and space to be used for the implementation of different systems of gardens and greenery.

This action is maximizing the amout of air and sunlight that the green space would capture.