Project:

Attic

Location:

Bucharest, Romania

Architectural program:

Residential

Date of completion:

Concept

The proposal involves the renovation of an attic apartment in a 1920s building located in the heart of Bucharest, Romania. The design highlights the building's original architectural features while paying homage to the owner’s Greek heritage by incorporating Mediterranean aesthetics.

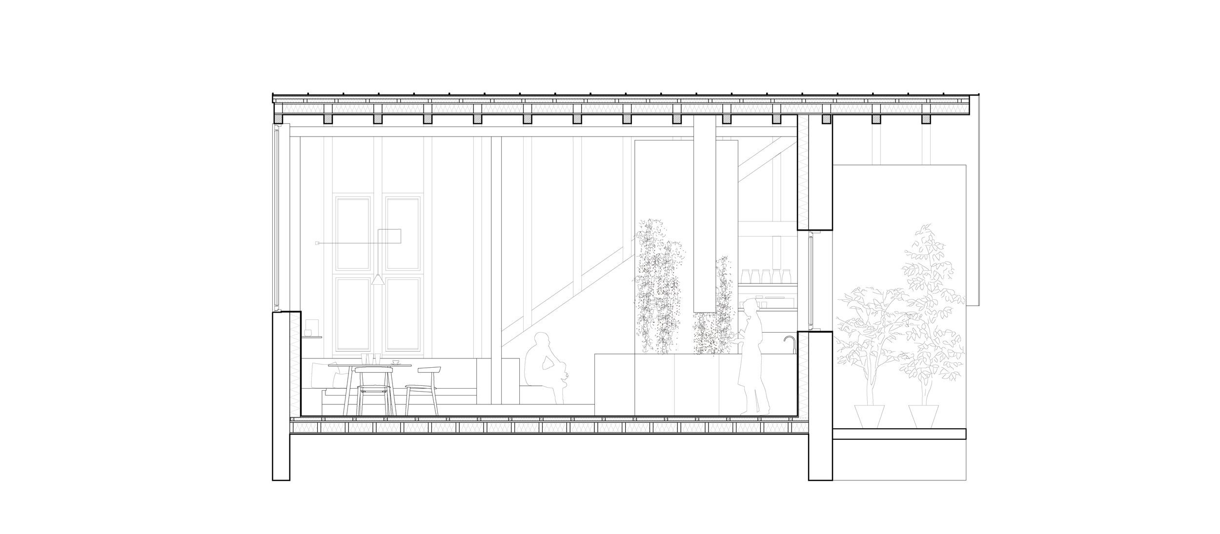
The exposed wooden structure of the attic, including beams and supports, is a key element, honoring the building's history. The old prominent chimney, becomes the focal point of the design and it is meant to be visible from all areas of the apartment.

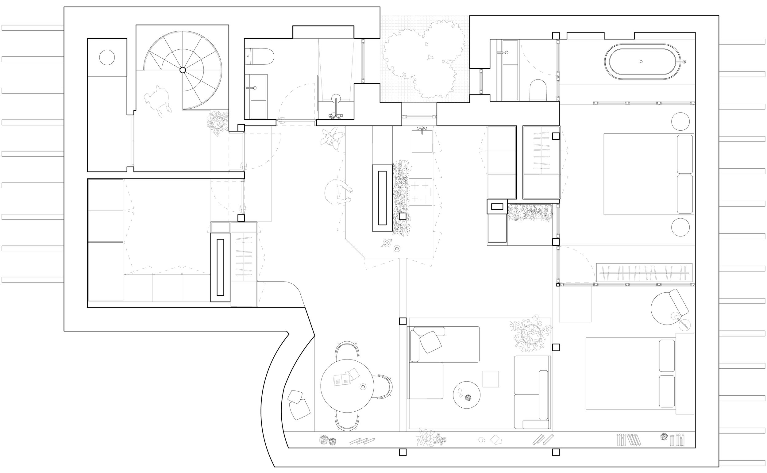
The space is designed as an open-concept living area. Glass partitions and light, opaque linen curtains are used to create separation and privacy for the master suite. This allows the chimney to remain visible while maintaining a sense of intimacy.

Attic Transformation Residential Space Interior Design

The exposed chimney becomes a sculptural element, its presence felt throughout the open space, anchoring the design and drawing the eye from every angle.

By celebrating the chimney's visibility, the design fosters a sense of continuity and connection, unifying the different areas of the attic apartment.

This interplay of perspectives transforms the historical fireplace into a dynamic focal point, enriching the experience of the space and creating a unique visual narrative.

The kitchen and living areas benefit from the roof's inclination and the maximum height.

The color palette is dominated by warm whites and light wood tones, reflecting the owner's love for Mediterranean style. The introduction of greenery, including potted plants, add a touch of nature.

The design emphasizes natural light, with strategically placed openings in the roof to flood the space with daylight. The overall impression is one of understated elegance, blending historical charm with modern, international influences to create a serene and inviting living space.

The design incorporates clean lines and a sense of simplicity inspired by Japanese design principles.

Platforms are created on the floor to create the bathrooms, and to accommodate the piping installation, without affecting the building structure.

Another platform is visible in the versatile room, that can be used as an office, a place to display a Christmas tree, a yoga space and a guest bedroom. A hidden matress can be taken out of the platform, when guests arrive.

The master bathroom features a bathtub that is visible from the master bed through glass partitions. The bathtub area is decorated with plants, creating the feeling of bathing in nature.

Clean lines define this custom washbasin, blending light wood cabinetry with a speckled ceramic basin. Brass fixtures add warmth, while a dark green ribbed marble shelf hosts soap and amenities, enhancing the spa-like atmosphere.